Immobilien
Neubaumittelreihenhaus in grüner Umgebung von Osdorf!
22549 Hamburg / Osdorf, Reihenhaus zum Kauf
Kontaktdaten
-
NameFrau Merle Fehrs
-
FirmaWeinhardt Immobilien
-
AdresseErikastraße 67
20251 Hamburg -
E-Mail Zentrale
-
E-Mail Direkt
-
Tel. Zentrale
- zum Kontaktformular
Objektdaten
-
Objekt ID2507
-
ObjekttypenHaus, Reihenhaus
-
Adresse(Osdorf (Stadtteil))
22549 Hamburg / Osdorf -
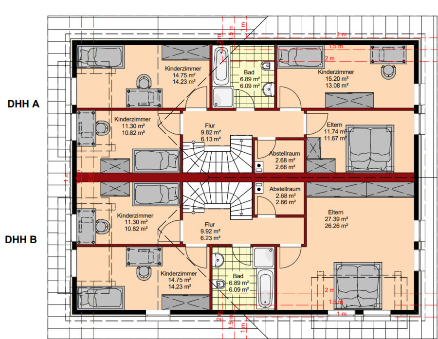
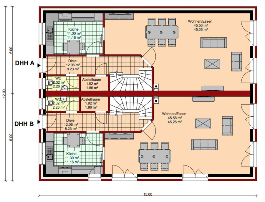
Wohnfläche ca.135 m²
-
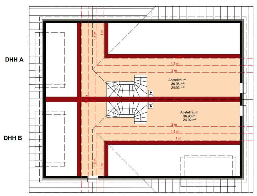
Nutzfläche ca.25 m²
-
Grundstück ca.250 m²
-
Zimmer4
-
Schlafzimmer3
-
Badezimmer1
-
Separate WC1
-
HeizungsartFußbodenheizung
-
Wesentlicher EnergieträgerLuft/Wasser Wärmepumpe
-
Baujahr2025
-
Stellplätze gesamt1
-
Stellplatz1 Stellplatz
-
Käuferprovision3,13 % vom Verkaufspreis inkl. MwSt.
-
Kaufpreis598.000 EUR
Ausstattung / Merkmale
- ✓ Separates WC
Objektbeschreibung
Beschreibung
In einer ruhigen, zentralen und vor allem grünen Lage von Osdorf, dürfen wir Ihnen dieses schöne Grundstück präsentieren, auf welchem ein Endreihenhaus und einem Mittelreihenhaus entstehen sollen.
Die Gärten versprechen viel Sonne und vor allem Platz für Familien mit Kindern. Die Häuser werden im klassischer Massivbauweise "Stein auf Stein" errichtet, verfügen über ca. 135 m² Wohnfläche im Erd- und Obergeschoss und einen zusätzlichen Abstellbereich im Dachgeschoss von ca. 25 m². Natürlich verfügen die Häuser über eine Luft-Wasser-Wärme-Pumpe, eine PV-Anlage mit Speicher und hochwertigen Außenklinker. Die Fußbodenheizung befindet sich im gesamten Haus.
Darüber hinaus ist für jedes Haus ein Außenstellplatz vorgesehen.
Der ausgeschrieben Preis beinhaltet bereits das Grundstück und das schlüsselfertige Haus. Klassische Baunebenkosten sind hierbei noch nicht berücksichtigt.
Änderungen an den Grundrissen können vorgenommen werden.
Ausstattung
- Grundstücksanteil von ca. 250 m²
- Massivbauweise mit ca. 135 m² Wohnfläche in EG und OG und Dachboden mit ca. 25 m² (schlüsselfertig)
- Alle Fenster sind mit einer einbruchshemmenden Pilzkopfverriegelung
- hochwertiger Außenklinker
- Luft-Wasser Wärmepumpe - Fa. Viessmann oder Vaillant -
- Photovoltaikanlage ca. 10 kWp und 6 kW Speicher
- Fußbodenheizung überall
- 1 Stellplatz inklusive
- schlüsselfertig mit Ausnahme von: Spachtel-, Maler-, Tapezier-, und Bodenbelagsarbeiten/Fliesen sind inklusive
Lage
Das hier angebotene Grundstück befindet sich in ruhiger Seitenstraße in Osdorf. Insgesamt ist das Grundstück ca. 830 m² groß. Das Grundstück ist aktuell mit einer abgängigen Doppelhaushälfte bebaut. Die eine Hälfte kann abgerissen werden, sodass eine große Doppelhaushälfte oder ein Reihenmittelhaus und ein Reihenendhaus angebaut werden können. Wenn Sie gemeinsam mit Freunden ein Bauprojekt verwirklichen möchten, könnte dieses Grundstück genau das Richtige für Sie sein.
Die nähere Umgebung ist geprägt durch eine Mischung aus Einfamilienhäusern und Doppelhäusern.
Das Grundstück liegt im familienfreundlichen Stadtteil Osdorf (Bezirk Altona), direkt im grünen Westen Hamburgs - ein attraktives Zusammenspiel aus Stadtnähe und naturnahem Wohnen.
Infrastruktur & Anbindung:
ÖPNV:
Buslinien (1, 21, 22, 37, 39, 186, Nachtbusse 601/602/621)
S-Bahn in der Nähe (Stationen Hochkamp, Klein Flottbek) - Innenstadt in ca. 25 Min. erreichbar
Einkauf & Alltag:
In unmittelbarer Nähe: Elbe-Einkaufszentrum (EEZ) mit etwa 180 Geschäften, Supermärkten, Ärzten und Restaurants
Zusätzliche Einkaufsmöglichkeiten im Ortskern Alt-Osdorf
Bildung & Betreuung:
Naher Grundschulen: z. B. Schule Wesperloh, Grundschule Osdorf
Weiterführende Schulen: Lise-Meitner-Gymnasium, Stadtteilschule Stübenhofer Weg
Private Bildungseinrichtung: Internationale School of Hamburg in Osdorf (IB‑Programm)
Freizeit & Grünflächen:
Große Grün- und Erholungsflächen wie die Osdorfer Feldmark, Loki-Schmidt-Garten, Helmut-Schack-See – ideal zum Spazieren, Radfahren, Entspannen
Mit dem Laden der Umgebungskarte akzeptieren Sie die Datenschutzerklärung von Google.
Sie aktivieren damit auch die Google Adressvervollständigung in der Umkreissuche.
Die dargestellte Position der Immobilie ist nur eine ungefähre Angabe.







