Immobilien
Mehrfamilienhaus mit drei Wohneinheiten mit genehmigter Bauvoranfrage für ein Doppelhaus
25336 Klein Nordende, Mehrfamilienhaus zum Kauf
Kontaktdaten
-
NameFrau Merle Fehrs
-
FirmaWeinhardt Immobilien
-
AdresseErikastraße 67
20251 Hamburg -
E-Mail Zentrale
-
E-Mail Direkt
-
Tel. Zentrale
- zum Kontaktformular
Objektdaten
-
Objekt ID2496
-
ObjekttypenHaus, Mehrfamilienhaus
-
Adresse(Klein Nordende (Gemeinde))
25336 Klein Nordende -
Wohnfläche ca.216 m²
-
Vermietbare Fläche ca.216 m²
-
Grundstück ca.750 m²
-
Zimmer8
-
Schlafzimmer5
-
Badezimmer3
-
Separate WC1
-
HeizungsartZentralheizung
-
Wesentlicher EnergieträgerGas
-
Baujahr1900
-
Statusvermietet
-
Käuferprovision7,14 % vom Verkaufspreis inkl. MwSt.
-
Kaufpreis409.000 EUR
Ausstattung / Merkmale
- ✓ Separates WC
- ✓ Teilunterkellert
Objektbeschreibung
Beschreibung
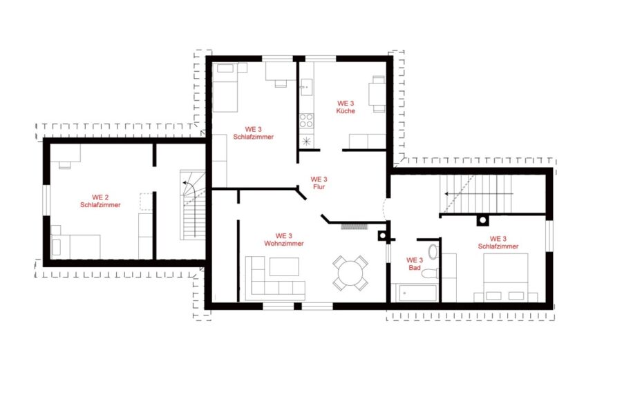
Dieses gepflegte Mehrfamilienhaus aus den 1900er-Jahren befindet sich in ruhiger und beliebter Wohnlage von Klein Nordende. Das Gebäude wurde 1994 umgebaut und in drei separate Wohneinheiten aufgeteilt. Alle drei Wohnungen sind derzeit zuverlässig vermietet und bieten eine solide Einnahmebasis.
Die Aufteilung im Überblick:
Wohnung 1: 3 Zimmer, Kaltmiete 690,25 €
Wohnung 2: 3 Zimmer, Kaltmiete 550 €
Wohnung 3: 2 Zimmer, Kaltmiete 430 €
Die Gesamtwohnfläche beträgt ca. 216 m². Das Grundstück umfasst großzügige ca. 750 m² und bietet damit nicht nur viel Platz, sondern auch außergewöhnliches Entwicklungspotenzial.
Ein besonderer Vorteil dieser Immobilie ist die bereits genehmigte Bauvoranfrage für ein Doppelhaus. Demnach könnte das aktuelle Mehrfamilienhaus zukünftig durch einen Neubau in Form eines Doppelhauses ersetzt werden. Vorgesehen sind je Doppelhaushälfte Maße von ca. 9 × 11 m auf zwei Vollgeschossen – ideal sowohl für Eigennutzer als auch für Investoren. Aktuell umfasst das Gesamtgrundstück ca. 1.500 m². Zum Angebot gehört der vordere Grundstücksteil einschließlich Mehrfamilienhaus. Der Erwerb des gesamten Grundstücks mit Mehrfamilienhaus oder ausschließlich des hinteren Baugrundstücks ist ebenfalls möglich. Im Zuge des Verkaufs würde das Grundstück aufgeteilt; für den hinteren Grundstückseigentümer würde zudem an der rechten Seite des Grundstücks ein Wegerecht sowie ein Fahr- und Leitungsrecht eingetragen.
Das Haus wird mittels einer Gaszentralheizung beheizt.
Aufgrund der Privatsphäre der derzeitigen Mieter werden nur wenige Objektfotos veröffentlicht. Besichtigungen der einzelnen Einheiten sind jedoch nach vorheriger Terminvereinbarung möglich.
Fazit:
Ein vielseitiges Objekt mit stabiler Vermietungssituation, großzügigem Grundstück und hervorragenden Erweiterungsmöglichkeiten – ideal für Investoren, Projektentwickler oder Bauherren mit Weitblick.
Ausstattung
Ausstattung:
* Baujahr aus den 1900er Jahren
* Umbau und Aufteilung in drei Wohnungen im Jahr 1994
* Drei vermietete Wohneinheiten
* Gesamtwohnfläche von ca. 216 Quadratmetern
* Grundstück mit Entwicklungspotenzial: Grundstücksgröße ca. 750 Quadratmeter
* Genehmigte Bauvoranfrage für ein Doppelhäuser mit je zwei Vollgeschossen
* Beheizung über eine Gaszentralheizung
* Ruhige Wohnlage in Klein Nordende
Lage
Klein Nordende ist eine lebendige und zugleich ruhige Gemeinde im Kreis Pinneberg, die ihren charmanten Dorfcharakter bis heute bewahrt hat. Umgeben von viel Grün, Feldern und weiten Spazierwegen bietet der Ort eine hohe Lebensqualität und ist besonders bei Familien beliebt. Gleichzeitig überzeugt Klein Nordende durch seine Nähe zu Elmshorn und Tornesch, gute Einkaufsmöglichkeiten, eine solide Verkehrsanbindung sowie ein aktives Vereins- und Gemeinschaftsleben. Hier verbinden sich ländliche Ruhe und alltagsnahe Infrastruktur zu einem attraktiven Wohnumfeld.
* REWE-Supermarkt: ca. 0,3 km
* Grundschule Klein Nordende-Lieth: ca. 0,9 km
* Kindergarten (ev. Kita Bugenhagen, Klein Nordende): ca. 0,8 km
* Bahnhof Elmshorn: ca. 4,0 km ca. 15 Minuten mit dem Fahrrad
* Bahnhof Tornesch: ca. 5,5 km ca. 17 Minuten mit dem Fahrrad
* Autobahnauffahrt A23 Tornesch: ca. 8,0 km
Mit dem Laden der Umgebungskarte akzeptieren Sie die Datenschutzerklärung von Google.
Sie aktivieren damit auch die Google Adressvervollständigung in der Umkreissuche.
Die dargestellte Position der Immobilie ist nur eine ungefähre Angabe.






