Immobilien
Geschäftshaus oder Baugrundstück in Einkaufsstraße von Barmstedt
25355 Barmstedt, Mehrfamilienhaus zum Kauf
Kontaktdaten
-
NameFrau Merle Fehrs
-
FirmaWeinhardt Immobilien
-
AdresseErikastraße 67
20251 Hamburg -
E-Mail Zentrale
-
E-Mail Direkt
-
Tel. Zentrale
- zum Kontaktformular
Objektdaten
-
Objekt ID2491
-
ObjekttypenHaus, Mehrfamilienhaus
-
Adresse(Barmstedt (Stadt))
25355 Barmstedt -
Wohnfläche ca.344 m²
-
Nutzfläche ca.344 m²
-
Vermietbare Fläche ca.344 m²
-
Grundstück ca.423 m²
-
Zimmer6
-
Separate WC3
-
Terrassen1
-
HeizungsartZentralheizung
-
Wesentlicher EnergieträgerGas
-
Baujahr1800
-
Käuferprovision7,14 % vom Verkaufspreis inkl. MwSt.
-
Kaufpreis329.000 EUR
Ausstattung / Merkmale
- ✓ Kein Keller
- ✓ Terrasse
- ✓ Separates WC
Objektbeschreibung
Beschreibung
Dieses Geschäftshaus befindet sich in zentraler Innenstadtlage von Barmstedt, unmittelbar gegenüber dem Rathaus – eine äußerst gefragte und frequentierte Position im Herzen der Stadt.
Das Gebäude steht derzeit vollständig leer und bietet dadurch vielfältige Nutzungsmöglichkeiten. Ob als Renovierungsobjekt mit historischem Charme oder als Grundlage für einen möglichen Neubau – hier eröffnen sich zahlreiche Perspektiven für Investoren, Unternehmer oder Projektentwickler.
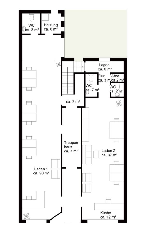
Das Objekt teilt sich im Erdgeschoss in zwei separate Ladenflächen auf:
-Linke Einheit: ca. 98 m² Verkaufsfläche
-Rechte Einheit: ca. 69 m² Verkaufsfläche
Beide verfügen über großzügige Schaufensterfronten zur belebten Einkaufsstraße und eignen sich hervorragend für Einzelhandel, Dienstleistung oder Gastronomie. Zwischen den beiden Einheiten befindet sich ein separater Zugang zum Treppenhaus, der in das Obergeschoss führt.
Das Obergeschoss umfasst rund 167 m² und wurde in den vergangenen Jahren teilweise von der linken Ladeneinheit mit genutzt. Es besteht aus einem großen, lichtdurchfluteten Raum mit einer stilvollen Lichtkuppel, zwei weiteren Zimmern mit Blick auf die Einkaufsstraße sowie einem kleineren Büroraum. Diese Etage eignet sich ideal als Büro-, Atelier- oder Ausstellungsfläche.
Das Gebäude stammt aus dem 19. Jahrhundert und besticht durch seinen historischen Charme mit typischen Stilelementen der Zeit – darunter hohe Decken, Kassettentüren und eine ansprechende Fassade.
Die Elektrik in den beiden Ladenflächen wurde bereits teilweise erneuert, und die Beheizung erfolgt über eine Gas-Zentralheizung. Ein kleiner Garten im rückwärtigen Bereich bietet zusätzlichen Freiraum und rundet das Angebot ab.
Ausstattung
Besonderheiten:
-Zentrale Innenstadtlage direkt am Rathaus
-Zwei separate Ladenflächen mit großen Schaufenstern
-Zusätzliche Fläche im Obergeschoss mit vielseitigen Nutzungsmöglichkeiten
-Historische Bausubstanz mit originalen Details
-Teilmodernisierte Elektrik
-Gas-Zentralheizung
-Kleiner Garten im rückwärtigen Bereich
-Frei und sofort verfügbar
Lage
Das Geschäftshaus befindet sich in zentraler Innenstadtlage von Barmstedt, direkt im historischen Stadtkern und nur wenige Schritte vom Rathaus entfernt. Diese hervorragende Position bietet eine hohe Sichtbarkeit und eine stetige Frequenz durch Anwohner, Passanten und Besucher der Stadt – ideale Voraussetzungen für Einzelhandel, Gastronomie oder Dienstleistungen.
Die Fußgängerzone mit zahlreichen Geschäften, Cafés und Restaurants liegt direkt vor der Tür. Supermärkte, Bäcker, Apotheken, Ärzte sowie Banken und öffentliche Einrichtungen sind bequem zu Fuß erreichbar. Schulen und Kindergärten befinden sich ebenfalls in der näheren Umgebung, was die Lage auch für eine mögliche gemischte Nutzung attraktiv macht.
Die Anbindung an den öffentlichen Nahverkehr ist sehr gut: Der Bahnhof Barmstedt ist in rund 10 bis 15 Gehminuten erreichbar und bietet mit der AKN-Bahn (Linie A3) eine direkte Verbindung nach Elmshorn und weiter in Richtung Hamburg. Mehrere Buslinien sorgen zusätzlich für eine gute Vernetzung innerhalb des Stadtgebiets und in die Nachbarorte.
In direkter Nachbarschaft wurde bereits ein Neubau mit modernen Wohn- und Gewerbeeinheiten realisiert – ein Hinweis auf die fortschreitende städtebauliche Entwicklung und die positive Standortdynamik im Zentrum. Dadurch eröffnet sich auch für dieses Objekt die Möglichkeit, neben einer rein gewerblichen Nutzung künftig eine Kombination aus Wohnen und Arbeiten zu realisieren.
Zahlreiche Parkmöglichkeiten in der Umgebung, ein ansprechendes Umfeld mit historischer Bausubstanz sowie die zentrale Lage am Markt machen diesen Standort zu einer langfristig wertbeständigen und vielseitig entwickelbaren Investition.
Mit dem Laden der Umgebungskarte akzeptieren Sie die Datenschutzerklärung von Google.
Sie aktivieren damit auch die Google Adressvervollständigung in der Umkreissuche.
Die dargestellte Position der Immobilie ist nur eine ungefähre Angabe.





















