Immobilien
Charmantes Neubau Einfamilienhaus inkl. Grundstück in rückwärtiger Lage!
22399 Hamburg / Poppenbüttel, Einfamilienhaus zum Kauf
Kontaktdaten
-
NameFrau Merle Fehrs
-
FirmaWeinhardt Immobilien
-
AdresseErikastraße 67
20251 Hamburg -
E-Mail Zentrale
-
E-Mail Direkt
-
Tel. Zentrale
- zum Kontaktformular
Objektdaten
-
Objekt ID2523
-
ObjekttypenHaus, Einfamilienhaus
-
Adresse(Poppenbüttel (Stadtteil))
22399 Hamburg / Poppenbüttel -
Wohnfläche ca.120 m²
-
Grundstück ca.445 m²
-
Zimmer5
-
Schlafzimmer3
-
Badezimmer2
-
Terrassen1
-
Baujahr2026
-
Käuferprovision3,57 % vom Verkaufspreis inkl. MwSt.
-
Kaufpreis779.000 EUR
Ausstattung / Merkmale
- ✓ Kein Keller
- ✓ Terrasse
Objektbeschreibung
Beschreibung
**Neubauprojekt: Einfamilienhaus in Hamburg Poppenbüttel mit 445 m² großem Grundstück**
Willkommen zu einem exklusiven Neubauprojekt in Hamburg Poppenbüttel, das modernes Design, hochwertige Ausstattung und eine ruhige Lage vereint. Dieses Einfamilienhaus bietet Ihnen ein Zuhause, das höchsten Wohnkomfort mit zeitgemäßer Architektur kombiniert.
Das Haus liegt in einer rückwärtigen, ruhigen Wohnlage und bietet gleichzeitig eine hervorragende Anbindung an die Infrastruktur von Hamburg. An der hinteren Grundstücksgrenze grenzt ein Kleingartenverein.
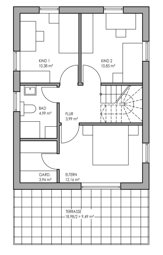
Mit einer Wohnfläche von ca. 120 m² verteilt auf das Erd-, und Obergeschoss bietet das Haus reichlich Platz für Ihre Familie und individuelle Lebensgestaltung.
Erdgeschoss (ca. 64 m²):
- Großzügiger Wohn-, und Essbereich, geschlossene Küche (optional auch als offene Küche) ideal für gemeinsame Zeit mit Familie und Gästen
- Praktisches Gäste-WC im Eingangsbereich mit Dusche
- Hauswirtschaftsraum mit modernster Technik, einschließlich energieeffizienter Wärmepumpe
Obergeschoss (ca. 56 m²):
- Drei gut geschnittene Zimmer: Zwei Kinderzimmer und ein Elternschlafzimmer mit begehbarem Kleiderschrank
- Hochwertiges Badezimmer mit Dusche
- Elegante Betontreppe als zentrales Gestaltungselement vom Erdgeschoss ins Dachgeschoss.
- Eine charmante Dachterrasse vom Elternschlafzimmer begehbar unterstreicht die Besonderheit dieser Etage und ist bereits im Kaufpreis berücksichtigt
Design und Technik:
Das Haus überzeugt durch seine moderne, weiße Putzfassade und anthrazitfarbene Fenster, die stilvolle Akzente setzen. Durchdachte Grundrisse und große Fensterflächen schaffen helle, einladende Räume. Im gesamten Haus befindet sich Fußbodenheizung. Die Fertigstellung erfolgt komplett schlüsselfertig – Sie können direkt einziehen! Ebenfalls profitieren Sie von modernster Haustechnik (Wärmepumpe). Im Kaufpreis nicht enthalten sind die Außenarbeiten (Stellplatz und Gartengestaltung) sowie die Anschlüsse (Wasser/Abwasser/Strom von der Straße zum Haus).
Ausstattung
•Fertigstellung ca. Ende 2026
• 445 m² großes Grundstück
•ca. 120 m² Wohnfläche
•Stellplatzmöglichkeit (Pflasterung nicht mit inbegriffen)
•Terrasse
•Wärmepumpe
•Fußbodenheizung
•voll ausgestattetes Bad und Gäste-WC
•Bodentiefe Fenster im Erdgeschoss
•hochwertige Ausstattung
•Massivbauweise
Beispiele der Gestaltungsmöglichkeiten für Frühentschlossene:
Küche: Die Küche ist im modern-geschlossenen Stil geplant. Wenn eine räumliche Öffnung bevorzugt wird, kann die Wand zwischen Wohnzimmer und Küche entfernt werden.
Eigenleistungen:
Um Kosten zu sparen, können – falls gewünscht – Eigenleistungen erbracht werden. Es kann ein erweiterter Rohbau zu jedem Fertigstellungsgrad erworben werden.
Alle Angaben, Pläne und Darstellungen in dieser Beschreibung wurden mit größter Sorgfalt erstellt. Dennoch übernehmen wir keine Gewähr für deren Richtigkeit, Vollständigkeit oder Aktualität, da sich Inhalte, Maße, Pläne und andere Details im Laufe der weiteren Planung und Bauausführung noch ändern können.
Lage
Die Immobilie liegt in dem beliebten Stadtteil Poppenbüttel und befindet sich in einer ruhigen und begrünten Lage. Eine gute Infrastruktur durch die Busstation Sandkuhlenkoppel (Buslinie 178) und zahlreiche Einkaufsmöglichkeiten sowie das nahegelegene Alstertal mit seinem Einkaufszentrum (AEZ) bieten viele Annehmlichkeiten. Ebenso sind Kindergärten, Schulen, Reitställe und die Golfanlage Treudelberg in der Nachbarschaft gelegen. Der Flughafen ist durch die Anbindung über den Ring 3 binnen 15 Minuten erreichbar.
Mit dem Laden der Umgebungskarte akzeptieren Sie die Datenschutzerklärung von Google.
Sie aktivieren damit auch die Google Adressvervollständigung in der Umkreissuche.
Die dargestellte Position der Immobilie ist nur eine ungefähre Angabe.







