Immobilien
Charmante Neubau-Doppelhaushälfte in ruhiger Lage von Iserbrook
22589 Hamburg, Doppelhaushälfte zum Kauf
Kontaktdaten
-
NameFrau Merle Fehrs
-
FirmaWeinhardt Immobilien
-
AdresseErikastraße 67
20251 Hamburg -
E-Mail Zentrale
-
E-Mail Direkt
-
Tel. Zentrale
- zum Kontaktformular
Objektdaten
-
Objekt ID2469
-
ObjekttypenHaus, Doppelhaushälfte
-
Adresse(Iserbrook (Stadtteil))
22589 Hamburg -
Wohnfläche ca.107 m²
-
Grundstück ca.516 m²
-
Zimmer5
-
Schlafzimmer3
-
Badezimmer1
-
Separate WC1
-
Terrassen1
-
Baujahr2026
-
Käuferprovision3,57 % vom Verkaufspreis inkl. MwSt.
-
Kaufpreis670.000 EUR
Ausstattung / Merkmale
- ✓ Separates WC
- ✓ Kein Keller
- ✓ Terrasse
Objektbeschreibung
Beschreibung
**Neubauprojekt: Doppelhaushälfte in Hamburg Iserbrook – Modernes Wohnen in ruhiger Lage**
Willkommen zu einem exklusiven Neubauprojekt in Hamburg Iserbrook, das modernes Design, hochwertige Ausstattung und eine ruhige Lage vereint. Diese Doppelhaushälfte bietet Ihnen ein Zuhause, das höchsten Wohnkomfort mit zeitgemäßer Architektur kombiniert.
Das Doppelhaus liegt in einer rückwärtigen, äußerst ruhigen Wohnlage und bietet gleichzeitig eine hervorragende Anbindung an die Infrastruktur von Hamburg Iserbrook. Es handelt sich bei diesem Angebot um die vordere Haushälfte.
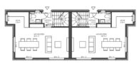
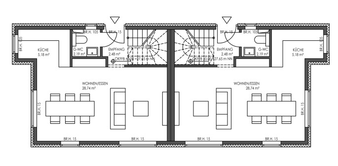
Mit einer Wohnfläche von ca. 107 m² verteilt auf das Erd-, Ober- und Dachgeschoss bietet das Haus reichlich Platz für Ihre Familie und individuelle Lebensgestaltung. Bei dem angebotenen Preis sind bereits der Hausbau, das Grundstück und weitere Baunebenkosten inbegriffen.
Erdgeschoss:
- Großzügiger Wohn-, und Essbereich, ideal für gemeinsame Zeit mit Familie und Gästen.
- Praktisches Gäste-WC im Eingangsbereich.
- Hauswirtschaftsraum mit modernster Technik, einschließlich energieeffizienter Wärmepumpe (ausgelagert)
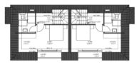
Obergeschoss:
- Zwei großzügig geschnittene Zimmer: Zwei Kinderzimmer oder ein Elternschlafzimmer und ein Kinderzimmer.
- Hochwertiges Badezimmer mit Dusche.
- Elegante Betontreppe oder Holztreppe als zentrales Gestaltungselement vom Erdgeschoss ins Dachgeschoss.
Dachgeschoss:
- Separater Elternbereich mit Austritt ins freie, nebst zusätzlichem Badezimmer
- Eine charmante Loggia unterstreicht die Besonderheit dieser Etage und ist bereits im Kaufpreis berücksichtigt
Design und Technik:
Das Haus überzeugt durch seine moderne, weiße Putzfassade und anthrazitfarbene Fenster, die stilvolle Akzente setzen. Durchdachte Grundrisse und große Fensterflächen schaffen helle, einladende Räume. Im gesamten Haus befindet sich Fußbodenheizung. Die Fertigstellung erfolgt komplett schlüsselfertig – Sie können direkt einziehen! Ebenfalls profitieren Sie von modernster Haustechnik (Wärmepumpe).
Bei Erwerb im einem frühen Stadium der Projektphase kann der Erwerber Einfluss auf die Ausgestaltung der Doppelhaushälfte nehmen. Sprich leichte Anpassungen der Grundrisse sind möglich.
Eigenleistungen:
Um Kosten zu sparen, können – falls gewünscht – Eigenleistungen erbracht werden. Es kann ein erweiterter Rohbau zu jedem Fertigstellungsgrad erworben werden.
Ausstattung
•Fertigstellung 2026
•ca. 107 m² Wohnfläche
•Stellplatzmöglichkeit
•Terrasse
•Wärmepumpe
•Fußbodenheizung
•voll ausgestattetes Bad und Gäste-WC
•Bodentiefe Fenster im Erdgeschoss
•hochwertige Ausstattung
•Massivbauweise
Alle Angaben, Pläne und Darstellungen in dieser Beschreibung wurden mit größter Sorgfalt erstellt. Dennoch übernehmen wir keine Gewähr für deren Richtigkeit, Vollständigkeit oder Aktualität, da sich Inhalte, Maße, Pläne und andere Details im Laufe der weiteren Planung und Bauausführung noch ändern können.
Sonstige Informationen
Alle Angaben, Pläne und Darstellungen in dieser Beschreibung wurden mit größter Sorgfalt erstellt. Dennoch übernehmen wir keine Gewähr für deren Richtigkeit, Vollständigkeit oder Aktualität, da sich Inhalte, Maße, Pläne und andere Details im Laufe der weiteren Planung und Bauausführung noch ändern können.
Lage
Die Immobilie befindet sich im Hamburger Stadtteil Iserbrook, einem der begehrten Elbvororte. Die Umgebung zeichnet sich durch eine ruhige, grüne Wohnlage mit einer Mischung aus Einfamilienhäusern und kleinen Mehrfamilienhäusern aus.
Öffentlicher Nahverkehr:
- Die S-Bahn-Station "Iserbrook" (Linie S1) ist etwa 500 Meter entfernt und in ca. 8 Gehminuten erreichbar.
- Die Buslinien 1, 285 und 621 verkehren in der Nähe und bieten zusätzliche Verbindungen in die umliegenden Stadtteile.
Versorgungsmöglichkeiten:
In der näheren Umgebung befinden sich diverse Einkaufsmöglichkeiten für den täglichen Bedarf, darunter Supermärkte, Bäckereien und Apotheken. Zusätzlich bietet das nahegelegene Elbe-Einkaufszentrum eine Vielzahl von Geschäften, Restaurants und Dienstleistungsangeboten.
Schulen und Kindergärten:
- Kindergärten: Die WABE-Kita "Lütt Iserbrook" liegt in unmittelbarer Nachbarschaft in der Straße Lütt Iserbrook 41. Weitere Kindertagesstätten befinden sich in fußläufiger Entfernung.
- Schulen: In Iserbrook und den angrenzenden Stadtteilen stehen mehrere Grundschulen zur Verfügung. Weiterführende Schulen sind ebenfalls gut erreichbar.
Freizeitmöglichkeiten:
Die Umgebung bietet zahlreiche Freizeitmöglichkeiten, darunter Parks und Grünflächen für Spaziergänge und sportliche Aktivitäten. Die Nähe zur Elbe ermöglicht zudem Ausflüge an das Elbufer. Sportvereine und kulturelle Einrichtungen in den umliegenden Stadtteilen ergänzen das Freizeitangebot.
Insgesamt bietet die Lage in Iserbrook eine ideale Kombination aus ruhigem Wohnen und guter Anbindung an die städtische Infrastruktur.
Mit dem Laden der Umgebungskarte akzeptieren Sie die Datenschutzerklärung von Google.
Sie aktivieren damit auch die Google Adressvervollständigung in der Umkreissuche.
Die dargestellte Position der Immobilie ist nur eine ungefähre Angabe.













