Immobilien
Doppelhausgrundstück in Moorrege mit Deichlage
25436 Moorrege / Klevendeich, Wohngrundstück zum Kauf
Kontaktdaten
-
NameFrau Merle Fehrs
-
FirmaWeinhardt Immobilien
-
AdresseErikastraße 67
20251 Hamburg -
E-Mail Zentrale
-
E-Mail Direkt
-
Tel. Zentrale
- zum Kontaktformular
Objektdaten
-
Objekt ID2515
-
ObjekttypenWohngrundstück, Grundstück
-
Adresse(Moorrege bei Uetersen (Gemeinde))
25436 Moorrege / Klevendeich -
Grundstück ca.2.961 m²
-
Käuferprovision7,14 % inkl. MwSt. vom Verkaufspreis
-
Kaufpreis109.000 EUR
Objektbeschreibung
Beschreibung
Dieses attraktive Baugrundstück befindet sich in ruhiger, grüner Außenlage von Moorrege, direkt an der Klevendeicher Drehbrücke. Es bietet eine ideale Kombination aus ländlichem Charme und guter Anbindung an die umliegenden Städte.
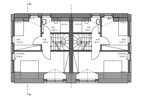
Auf dem 183 m² großen Grundstück liegt bereits eine erteilte Baugenehmigung für den Bau eines Doppelhauses. Jedes Haus kann eine Wohnfläche von ca. 100 m² bieten, was viel Raum für ein modernes, familienfreundliches Zuhause schafft.
Zusätzlich zum Baugrundstück gehört ein Deichgrundstück von knapp 2.779 m², das sich auf der gegenüberliegenden Straßenseite befindet. Dieses Grundstück bietet nicht nur viel Freiraum, sondern auch die Möglichkeit zur Nutzung als Garten oder zur Schaffung von Erholungsflächen.
Nutzen Sie diese seltene Gelegenheit, Ihr Traumhaus in einer ruhigen, naturnahen Umgebung zu realisieren!
Das Grundstück ist derzeit mit einem eingeschossigen Altbau bebaut. Das Grundstück wird mit gültiger Baugenehmigung verkauft.
Ausstattung
- Grundstück mit 183 qm Fläche mit Baugenehmigung für ein Doppelhaus
- 2.779 qm Deichgrundstück auf der gegenüberliegenden Seite
Lage
Das angebotene Baugrundstück befindet sich im idyllischen Moorrege Klevendeich, direkt an der historischen Klevendeicher Drehbrücke. In unmittelbarer Nähe lädt das renommierte Restaurant "Schönes Leben – Auf dem Lande" in Neuendeich zu kulinarischen Genüssen in historischem Ambiente ein.
Für Familien mit Kindern sind Schulen und Kindergärten in der Umgebung gut erreichbar. Der nächste Supermarkt befindet sich ebenfalls in der Nähe, sodass tägliche Besorgungen problemlos erledigt werden können.
Distanzen im Überblick:
-Grundschule am Roggenfeld: ca. 5 km
-Waldorfkindergarten: ca. 5 km
-Ludwig-Meyn-Gymnasium: ca. 4 km
-Supermarkt: ca. 5 km
Mit dem Laden der Umgebungskarte akzeptieren Sie die Datenschutzerklärung von Google.
Sie aktivieren damit auch die Google Adressvervollständigung in der Umkreissuche.
Die dargestellte Position der Immobilie ist nur eine ungefähre Angabe.













