Immobilien
Baugrundstück für Ein- und Mehrfamilienhaus mit vier Wohneinheiten in Strandnähe
24257 Hohenfelde, Grundstück zum Kauf
Kontaktdaten
-
NameFrau Merle Fehrs
-
FirmaWeinhardt Immobilien
-
AdresseErikastraße 67
20251 Hamburg -
E-Mail Zentrale
-
E-Mail Direkt
-
Tel. Zentrale
- zum Kontaktformular
Objektdaten
-
Objekt ID2525
-
ObjekttypGrundstück
-
Adresse(Malmsteg bei Kiel)
24257 Hohenfelde -
Grundstück ca.644 m²
-
Kaufpreis225.000 EUR
Objektbeschreibung
Beschreibung
Dieses attraktive Baugrundstück bietet mit einer Fläche von 644 m² ideale Voraussetzungen für Ihr Neubauprojekt. Bereits genehmigt ist die Errichtung eines modernen Mehrfamilienhauses mit vier Wohneinheiten – eine perfekte Investitionsmöglichkeit in gefragter Lage. Aber auch ein Bau eines Einfamilienhauses oder Zweifamilienhauses wäre denkbar.
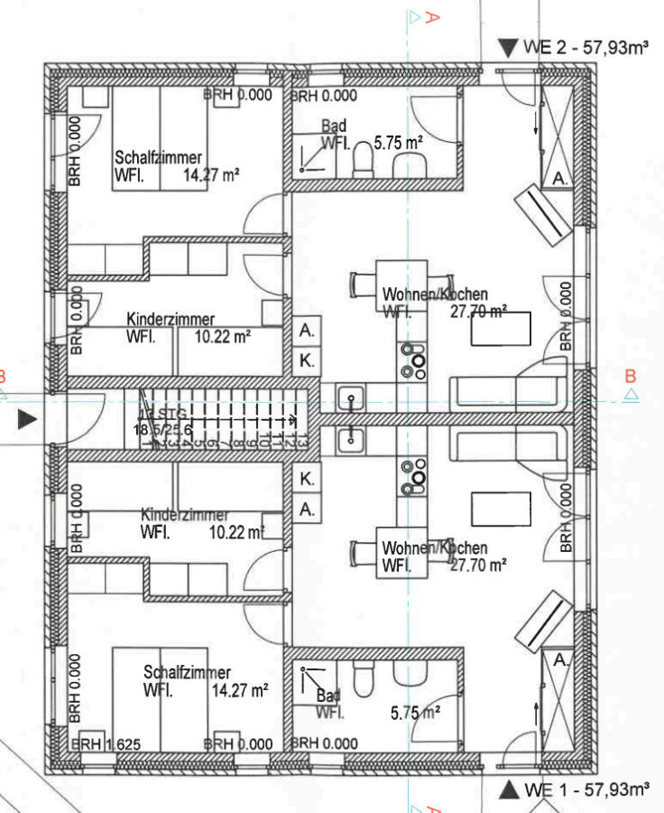
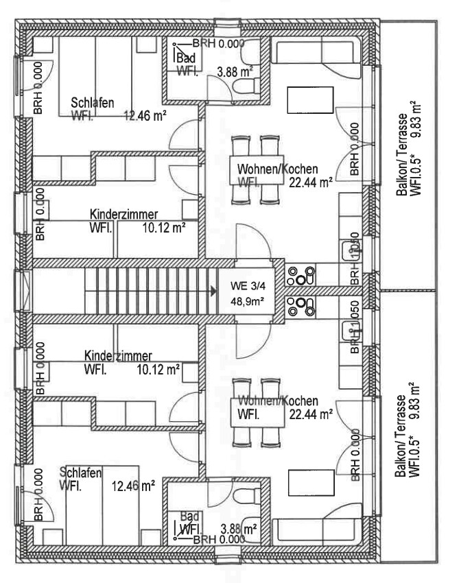
Geplant sind zwei komfortable Erdgeschosswohnungen mit jeweils ca. 58 m² Wohnfläche sowie zwei gut geschnittene Obergeschosswohnungen mit jeweils ca. 49 m². Das Gebäude darf mit zwei Vollgeschossen realisiert werden.
Besonders interessant für Kapitalanleger: Die Obergeschosswohnungen sind zur Ferienvermietung zugelassen, während die Erdgeschosswohnungen für eine dauerhafte Vermietung vorgesehen sind. So lässt sich eine attraktive Kombination aus stabilen Mieteinnahmen und lukrativer Ferienvermietung erzielen.
Ein weiteres Highlight ist die hervorragende Lage in unmittelbarer Nähe zum Strand Hohenfelde – ein starkes Argument sowohl für Feriengäste als auch für langfristige Mieter.
Ausstattung
Grundstücksgröße: ca. 644 m²
Baugenehmigung für ein Mehrfamilienhaus mit 4 Wohneinheiten
-Zwei Vollgeschosse realisierbar laut Baugenehmigung
-2 Erdgeschosswohnungen mit jeweils ca. 58 m²
-2 Obergeschosswohnungen mit jeweils ca. 49 m²
-Obergeschosswohnungen zur Ferienvermietung zugelassen
-Erdgeschosswohnungen zur dauerhaften Vermietung vorgesehen
-Strandnahe Lage
Lage
Die Lage dieses Grundstücks überzeugt durch seine sehr gute Anbindung an Strand und tägliche Versorgung:
-Edeka Alpenfrischemarkt: ca. 350 m, entspricht ca. 3 Minuten Fußweg
-Ostseestrand: nur gerade die Straße runter ca. 1,9 km, entspricht ca. 5 Minuten mit dem Fahrrad
Mit dem Laden der Umgebungskarte akzeptieren Sie die Datenschutzerklärung von Google.
Sie aktivieren damit auch die Google Adressvervollständigung in der Umkreissuche.
Die dargestellte Position der Immobilie ist nur eine ungefähre Angabe.







